Project About
The building is a designated cultural heritage monument and represents an important example of mid-19th century Classicist architecture in Tbilisi. It has retained its characteristic façade composition, including the distinctive recessed window forms and finely carved architectural elements that define its historical identity. The modest yet elegant structure stands out as a rare surviving fragment of the city’s Classicist architectural layer.
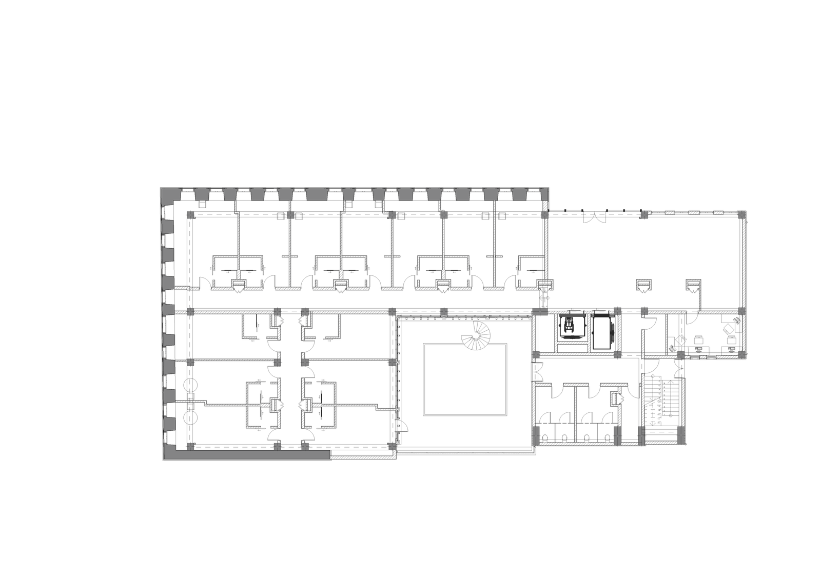
The single-storey rendered brick house occupies a prominent street-corner position, presenting two principal façades toward the urban public realm. Both façades are articulated through a disciplined rhythm of rectangular openings, each set within a continuous arched band that unifies the elevation. The springing points of the arches rest on chamfered pilasters, which serve as the only decorative ornamentation of the façade. This restrained architectural language reflects the clarity and proportional harmony of Classicism, expressed here in a particularly laconic and understated manner.
The cultural and architectural value of the monument lies precisely in this simplicity. Unlike many of the more elaborate “Tbilisi houses” in the surrounding neighborhood, this building is distinguished by its minimal decorative treatment and calm compositional order. Its modest façade, defined by rhythm, proportion, and subtle detailing, contributes a unique architectural presence to the historic district.
The new 100-room hotel project is conceived as an architectural coexistence between the rehabilitated historic structure and a contemporary addition. Rather than overwhelming the protected monument, the new volume was designed to be recessed from the heritage façade, ensuring that the historic building remains visually dominant within the streetscape. This setback strategy allows the original structure to preserve its integrity and legibility, while the new intervention emerges as a secondary layer in the urban composition.
The façades of the newly constructed upper floors are more articulated, introducing a contemporary material dialogue into the historic environment. The new volume is composed of several distinct façade treatments: one section is finished with vertical colored glass, creating a dynamic and reflective surface; another incorporates a decorative structure made of composite panels, adding texture and depth; while a third portion is completed with a regular brick façade, establishing continuity with the traditional masonry character of Tbilisi’s historic architecture.
Through this careful interaction of old and new, the project creates a layered architectural narrative that respects the monument while introducing contemporary expression. The architectural concept of Hotel New History seeks to enrich the historic district of Tbilisi by introducing diversity in massing, façade articulation, and material interaction. The result is an architectural composition where heritage preservation and modern development coexist, contributing to the evolving identity of the city’s historic center.









