About Project
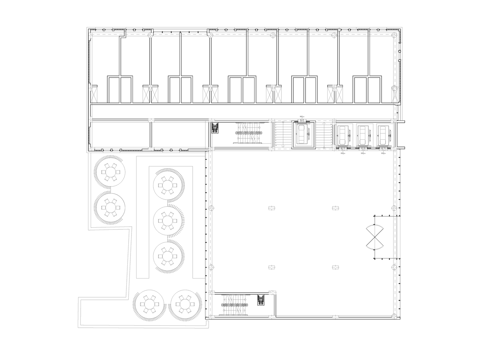
Hotel H-1 is situated at the prominent intersection of Lomouri Street and Abdushelishvili Street in Tbilisi, occupying a strategically important corner site within the historic urban fabric of the city. The project concept proposes a four-story hotel building with a total of 80 guest rooms, designed to accommodate contemporary hospitality functions while responding sensitively to the architectural and cultural character of its surroundings. Due to its location within one of Tbilisi’s most historically significant districts, the building was conceived not only as a functional hotel but also as an architectural intervention that contributes to the ongoing evolution of the city’s historic center.
The historical center of Tbilisi is known for its layered development, where architectural styles, urban typologies, and cultural influences have accumulated over centuries. In particular, the Avlabari district represents a unique part of this urban landscape. Since the 19th century, Avlabari has developed into a distinctive neighborhood defined by its charming street network, irregular building patterns, and close relationship between residential structures, public spaces, and the city’s topography. The district’s architectural identity is shaped by modest historic buildings, narrow streets, and a heterogeneous urban texture that reflects its gradual and uneven growth over time.
Within this sensitive context, the design of Hotel H-1 seeks to establish a thoughtful balance between contemporary architectural expression and respectful integration into the existing environment. Rather than introducing an isolated or dominant object, the project aims to continue the historical structure of the area, reinforcing the scale, rhythm, and spatial qualities that define Avlabari’s urban character. The hotel is intended to become part of the district’s ongoing narrative, acknowledging its heritage while offering a modern hospitality experience.
The building spans two facades along the intersection of Lomouri and Abdushelishvili streets, responding directly to the corner condition and the dual street presence. This positioning allows the hotel to engage with both streets equally, creating an active urban frontage that contributes to the vitality of the neighborhood. The massing of the project is divided into two distinct segments, a design decision that reflects the fragmented and uneven development pattern typical of this part of Avlabari. Historically, buildings in the district have emerged incrementally, adapting to changing needs, site constraints, and the irregular geometry of the streets. By dividing the volume, the hotel echoes this layered growth, avoiding a monolithic appearance and instead creating a composition that feels more closely aligned with the existing urban fabric.
This segmentation also allows the building to establish a rhythm along its facades, maintaining a scale that relates to the surrounding historic structures. The architectural language of Hotel H-1 draws inspiration from the proportions and spatial organization of the district without resorting to direct imitation. In this way, the design pays homage to the historical context through continuity of form, alignment, and urban presence, while still expressing a contemporary identity appropriate for a modern hotel.
Internally, the four-story layout accommodates 80 rooms, organized efficiently to provide comfort, functionality, and clear circulation. Guest spaces are designed to benefit from the corner site, with many rooms oriented toward the street views and the dynamic city life of Avlabari. Public and service areas are integrated into the building in a manner that supports both operational requirements and a welcoming guest experience. The hotel is envisioned as a place where visitors can engage with the historic atmosphere of Tbilisi while enjoying the amenities of a modern hospitality environment.
The project’s architectural approach reflects a broader intention to contribute positively to the preservation and renewal of the historic center. In districts such as Avlabari, new development carries the responsibility of reinforcing the cultural and spatial qualities that make the area unique. Hotel H-1 responds to this responsibility through careful contextual integration, respectful massing, and a design strategy that continues the historical urban structure rather than disrupting it.
Overall, Hotel H-1 represents a contemporary addition to the evolving architectural landscape of Tbilisi’s historic center. Through its sensitive response to the corner site, its segmented facade composition, and its dialogue with the uneven growth patterns of Avlabari, the project offers a model for how modern hospitality architecture can be thoughtfully embedded within a culturally rich and historically significant urban environment.










